VORRA – So viel steht heute schon fest: Der noch in der Vorplanung befindliche Vermögenshaushalt 2016 der Gemeinde Vorra wird mit Sicherheit drei „dicke Brocken“, also drei dringend notwendige Investitionen zu verkraften haben. Neben der bereits beschlossenen Anschaffung eines neuen Löschfahrzeugs für die Feuerwehr Vorra sind dies der Hortgruppenanbau an den Kindergarten „Pfiffikus“ sowie der Ersatzneubau der Artelshofener Pegnitzbrücke. In allen drei Fällen gibt es staatliche Finanzhilfen.
Bereits in der Novembersitzung 2015 war die Anschaffung eines Einsatzfahrzeuges (HLF 10) für die Vorraer Wehr in Auftrag gegeben worden. Die Gesamtkosten von 368 000 Euro setzen sich unter anderem aus Fahrgestell (87 334 Euro), Fahrzeugaufbau (177 401 Euro) und „Beladung“ (71 000 Euro) zusammen. Die Zuschusshöhe beläuft sich auf zirka 83 000 Euro (unter 30 Prozent).
Wesentlich mehr Finanzmittel gibt es für die beiden Bauprojekte, wie Bürgermeister Volker Herzog in der jüngsten Gemeinderatssitzung bekannt gab. So habe die Kommune mittlerweile zwei jeweils mit Datum vom 15. Januar ausgestellte Bescheide für den Hortgruppenanbau (an den Kindergarten „Pfiffikus“) erhalten.
Zum einen handelt es sich um eine Zuweisung nach Artikel 27 des Bayerischen Kinderbildungs- und –betreuungsgesetzes. Vom Freistaat wird hier aus einer Brutto-Gesamtfläche von 380 Quadratmetern eine „Hauptnutzungsfläche“ von exakt 222,36 Quadratmetern anerkannt. Daraus errechnen sich bezuschussungsfähige Kosten von 863 423 Euro (3882 Euro pro Quadratmeter), die wiederum mit 70 Prozent gefördert werden. Die Gemeinde erhält somit FAG-Mittel von genau 604 397 Euro.
Hinzu kommt eine Förderung aus dem Investitionsprogramm „Kinderbetreuungsfinanzierung 2015 – 2018“ des Bundesministeriums für Familie, Senioren, Frauen und Jugend. Aus diesen dem Freistaat zur Verfügung gestellten Bundesmitteln werden in Vorra acht zusätzliche Krippenplätze mit je 9800 Euro gefördert, also ein weiterer Zuschuss von 78 400 Euro.
Von den kalkulierten Gesamtkosten (einschließlich Planung) von 948 000 Euro verbleiben der Gemeinde Eigenmittel von 265 203 Euro. Nach dem Eingang der Bescheide konnten die einzelnen Gewerke für den Neubau bereits ausgeschrieben werden. Herzog rechnet mit dem Beginn der Rohbauarbeiten ab Mai: „Wenn alles rund läuft, ist der Hortgruppenanbau bis zum Schuljahr 2017/2018 bezugsfertig.“
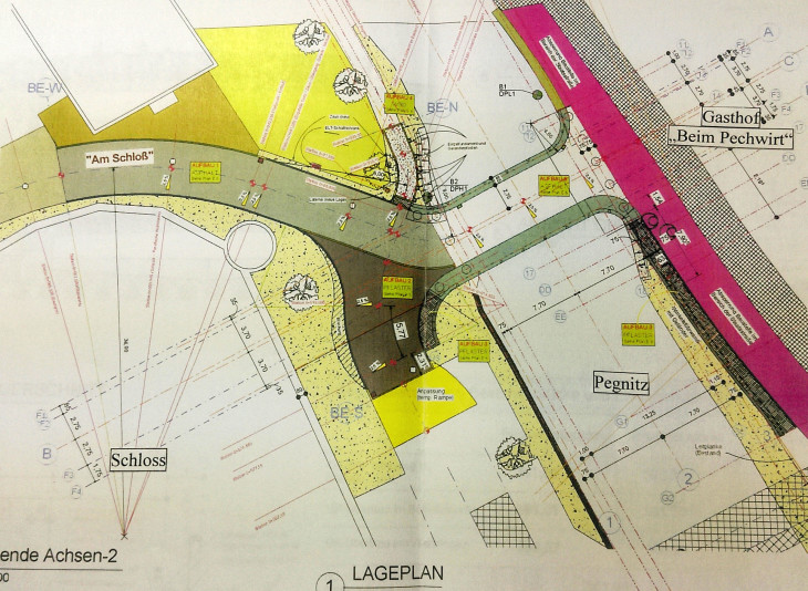
Für den Ersatzneubau der Pegnitzbrücke in Artelshofen ist die Ausschreibung bereits erfolgt. Den Zuschlag in Höhe von 618 483 Euro erhielt die Fa. AS-Bau aus Hof. Auch hier fließt Geld aus zwei „Zuschuss-Töpfen“: zum einen erhält die Gemeinde aus dem Finanzausgleichsgesetz (FAG) – Sonderbaulast – rund 500 000 Euro (80 Prozent) der zuwendungsfähigen Kosten von 592 000 Euro.
Die in dem Bescheid der Regierung von Mittelfranken nicht anerkannten Kosten für die Straßenanbindungen am westlichen Pegnitzufer („Am Schloss“ und „Schulanger“) werden nach Art. 13/c FAG – Härtefond – gefördert, hier hofft der Bürgermeister mit einem Zuschuss von bis zu 70 Prozent.
Je nach Witterung sollen die Bauarbeiten noch im März beginnen, und zwar mit Erstellung einer Behelfsbrücke; anschließend erfolgt der Abbruch des alten Brückenbauwerks. Die Fertigstellung ist für Mitte November terminiert.
Mit Blick auf die geringe Steuerkraft der Gemeinde – die überörtliche Rechnungsprüfung sieht hier Vorra an letzter beziehungsweise vorletzter Stelle im Landkreis – erwartet Herzog auch für 2016 eine staatliche Stabilisierungshilfe. Diese willkommenen Finanzmittel seien zunächst für fünf Jahre beantragt worden und dreimal in Folge habe man diese Gelder bereits erhalten, zuletzt 350 000 Euro für den Haushalt 2015 mit Bewilligungsbescheid von 27. November letzten Jahres.
